IT Pod

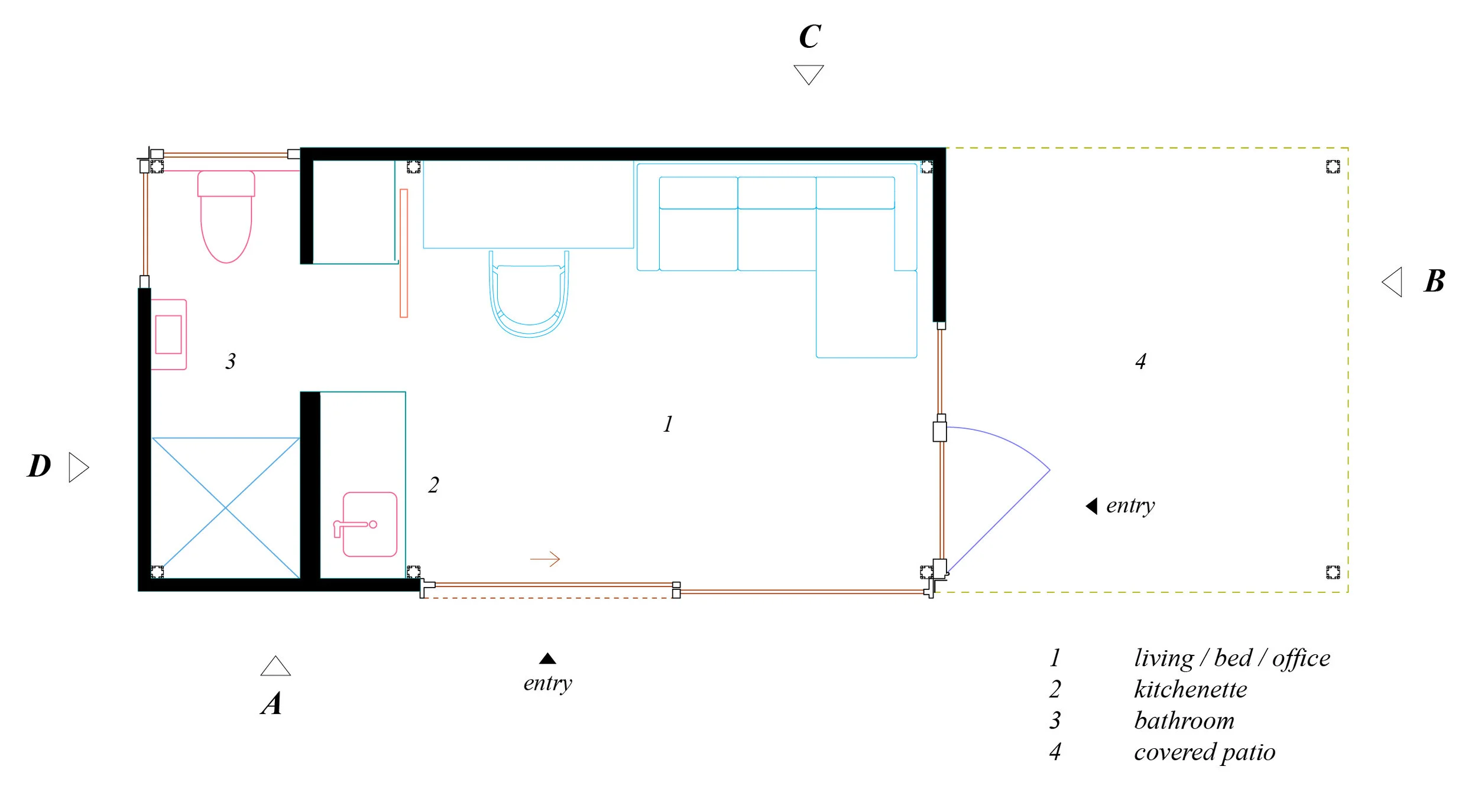
The compact footprint of the IT Pod gives it the flexibility to fit on a range of sites, particularly when space is limited.  With roughly the dimensions of a single-car garage, the IT Pod is designed to be able to replace existing accessory structures or it can be built as a detached accessory dwelling unit. 

The IT Pod provides the opportunity to affordably add private and acoustically controlled space on a property while retaining exterior space for outdoor patios and landscaping. With large sliding glass doors, the IT Pod merges interior with exterior spaces, with an option to extend the aluminum structural framing to provide a covered patio area.


it pod_web.jpg

Footprint: 28ft x 10ft / 200sf 90sf Patio
Ceiling Height: 8ft 4in
Solar PV, option for gas hook up